一、概 述
ENR-JXB系列變壓器中性點間隙接地保護成套裝置采用氧化鋅避雷器加間隙并聯運行的保護方式,適用于110KV、220KV、330KV電力變壓器的中性點,不僅可以保護變壓器中性點絕緣免受雷電過電壓和工頻暫態過電壓的損壞,還可實現變壓器中性點接地運行或不接地運行兩種不同運行方式的自由切換。ENR-JXB系列變壓器中性點間隙接地保護成套裝置(主變中性點接地組合設備)被應用于熱電、水電及風力發電等電廠、電站,各大變電所、變電站,及煤炭礦業、鋼鐵冶金、石油化工等大型工礦企業。
二、產品型號及說明

1、適用于戶內、外;
2、環境溫度:不低于-40℃,不高于+55℃;相對濕度:不大于95%(25℃);
3、海拔高度不超過4000m,超出4000m可根據實際情況特制;
4、地震烈度8度及以下地區;風速不超過35m/S;
5、電網頻率:58~62Hz(60Hz系統)、48~52Hz(50Hz系統);
6、安裝場所的空氣中不應含化學腐蝕氣體和蒸氣。
注:若使用條件與以上不同時,需在訂貨時加以注明。


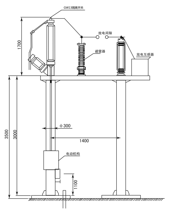
ENR-JXB-110KV/D的中性點接地保護裝置外形尺寸

六、產品包裝運輸
本產品裝箱時應放置在包裝箱底座上,并用螺栓緊固;
裝置罩上塑料薄膜以防止運輸或存儲過程中灰塵或水汽浸入;
包裝箱上明確標明交貨地點、設備名稱和運輸重量等;
運輸、裝卸過程中應注意防雨、輕放、向上直立、防碰,以免損壞設備;
貨到后,應用叉車或吊車卸貨;
卸貨前應加以檢查,以確認運輸過程中貨物是否安全無損;
我公司建議采用原包裝將設備運抵安裝現場,以防止在運輸中可能出現的損壞。
1、設備可利用底座的4個安裝孔進行吊裝,不得把吊繩捆綁在瓷柱上,防止損壞設備。
2、固定操作機構的槽鋼支架和由操作機構到隔離開關導電桿轉軸的鋼管,不在本裝置的供貨范圍內。均由安裝單位現場制作,長度、尺寸現場確定。
3、設備應可靠接地。
4、產品的外形及尺寸以實際供貨為準。
5、隔離開關的安裝可參照附件GW8系列中性點隔離開關的安裝說明進行。
6、電流互感器二次側不使用時應可靠短路。
客戶訂貨時應告知下列參數
1、變壓器電壓等級
2、電流互感器的變比、準確級、容量
3、隔離開關額定電流及其操作機構形式
4、是否需要立柱
如需詳細產品資料請咨詢伊諾爾電氣客服0312-3265117 3265127



地址:河北省保定市競秀區風能街315號 電話:0312-3265117 傳真:0312-3265157 郵箱:enrdq@163.com